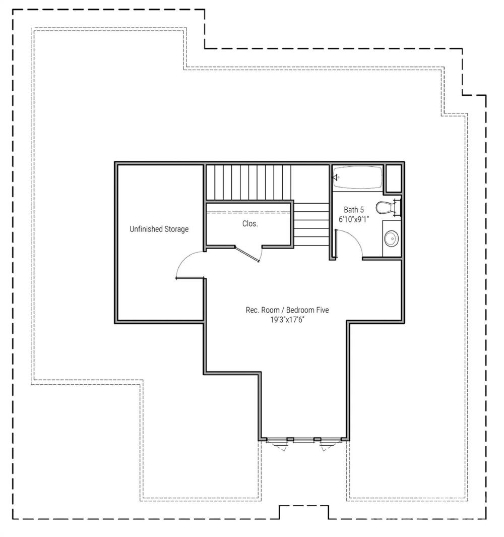
Located within the gated community of Heydon Hall, this residence is one of just 14 homes available in the community’s final phase. Buyers may choose from six thoughtfully designed floor plans, each offering multiple elevations, finished basement or third-floor options, and the opportunity to select a primary suite on the main level for any lot. Crafted for flexibility and everyday livability, this home features a sealed crawl space and an optional finished third floor that provides a rec room or a fifth bedroom with a full bath—adding an additional 554 square feet. The main level includes the primary suite, a versatile flex room, a large great room, a separate dining area, a scullery, and a covered rear porch.The second floor offers three spacious en suite bedrooms, a bonus room, and an office, with an optional wet bar available for the bonus room. A detached garage completes this well-planned home. As with all homesites in Heydon Hall, a pool may be added if desired.
| MLS#: | 4322817 |
| Price: | $2,096,947 |
| Square Footage: | 3907 |
| Bedrooms: | 4 |
| Bathrooms: | 4.1 |
| Acreage: | 0.16 |
| Year Built: | 2026 |
| Type: | Single Family Residence |
Based on information submitted to the MLS GRID as of 2026-05-01 12:00:00. All data is obtained from various sources and may not have been verified by broker or MLS GRID. Supplied Open House Information is subject to change without notice. All information should be independently reviewed and verified for accuracy. Properties may or may not be listed by the office/agent presenting the information. Some IDX listings have been excluded from this website.
Contact An Agent:





